Haus Classic

Traditionell mit viel Gestaltungsfreiraum!

Eine Begegnung der wohnlichen Art.

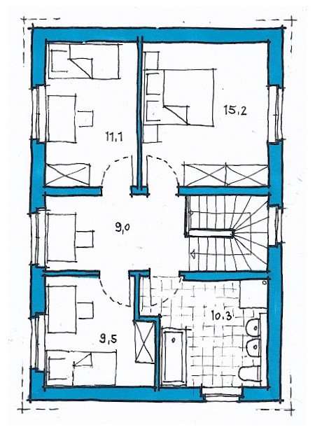
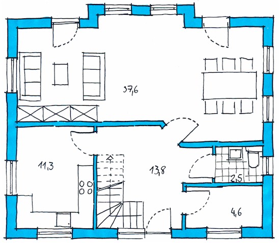
Häuser mit Satteldächern können durch diese klassischen Dachformen architektonisch spannend gestaltet werden. Mit hochwertigen Dachfenstern ist es einfach die Natur hereinzulassen. So wird das Dachgeschoß zur behaglichen Sonneninsel und zum wertvollen Wohnraum.

Haus Classik 190

Haus Classik 115

Haus Classik 116

Haus Classic 136